

Maître d'ouvrage
JP
Architecte
GTA
Programme
Villa T4
Localisation
Restinclières (34)
Budget
350 000 €HT
Surface
165 m² SHAB
Statut
Livrée 2021
JP
Architecte
GTA
Programme
Villa T4
Localisation
Restinclières (34)
Budget
350 000 €HT
Surface
165 m² SHAB
Statut
Livrée 2021


Entièrement conçue pour séquencer la vie au rythme des saisons, cette villa en maçonnerie traditionnelle, répond à des attentes parfaitement exprimées au début du programme: dedans/dehors et dehors/dedans...
Maître d'ouvrage
JCD
Architecte
GTA
Programme
Villa T3 avec coin été
Localisation
Clapier (34)
Budget
210 000 €HT
Surface
110 m²
Statut
APD
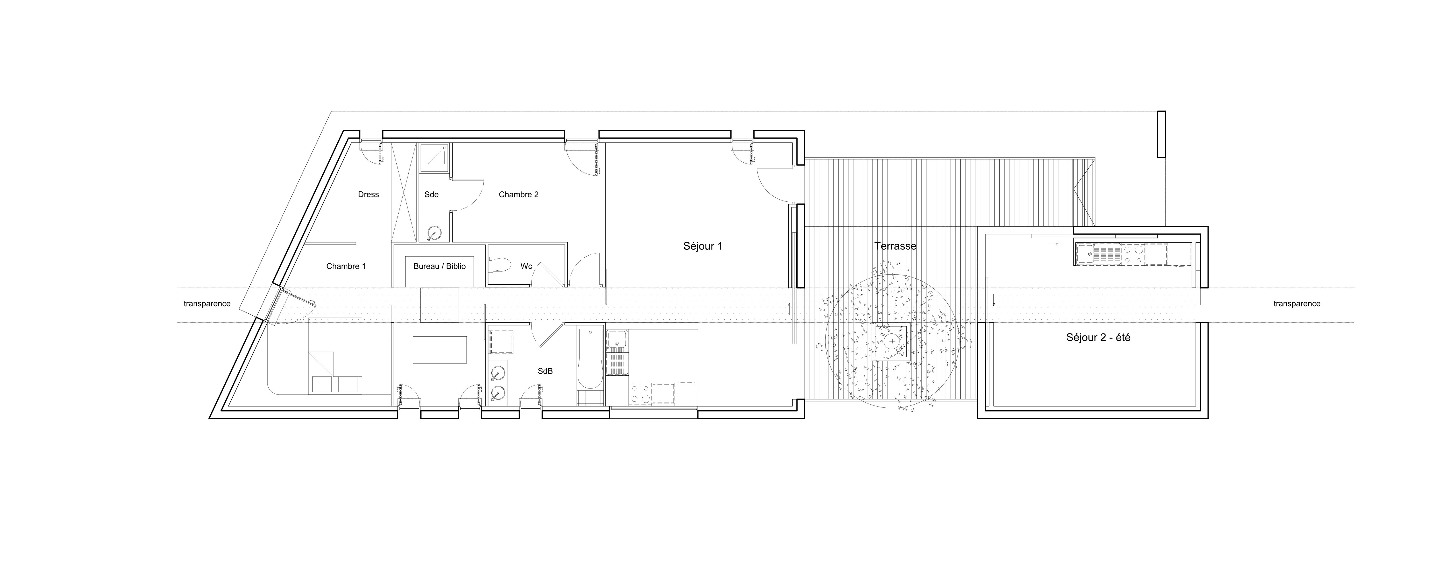
JCD
Architecte
GTA
Programme
Villa T3 avec coin été
Localisation
Clapier (34)
Budget
210 000 €HT
Surface
110 m²
Statut
APD





Maître d'ouvrageFM privé
Architecte
GTA
Programme
Villa T5
Localisation
Montferrier sur Lez (34)
Budget
300 000 €HT
Surface
178 m² SHAB
Statut
travaux en cours


Maître d'ouvrageCR privé
Architecte
GTA
Programme
Villa T5 avec patio central
Localisation
Les Matelles (34)
Budget
350 000 €HT
Surface
170 m² SHAB
Statut
PC